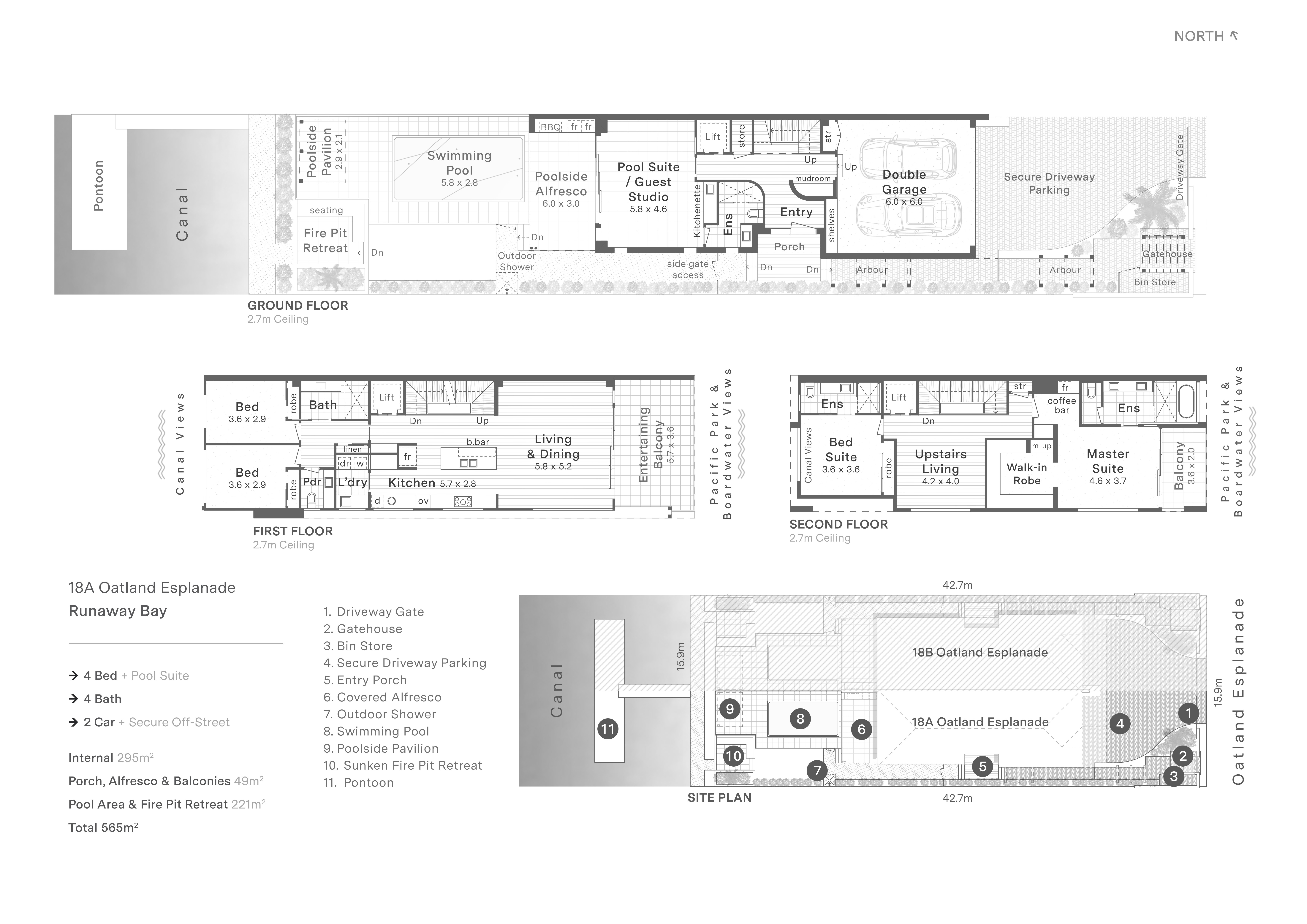
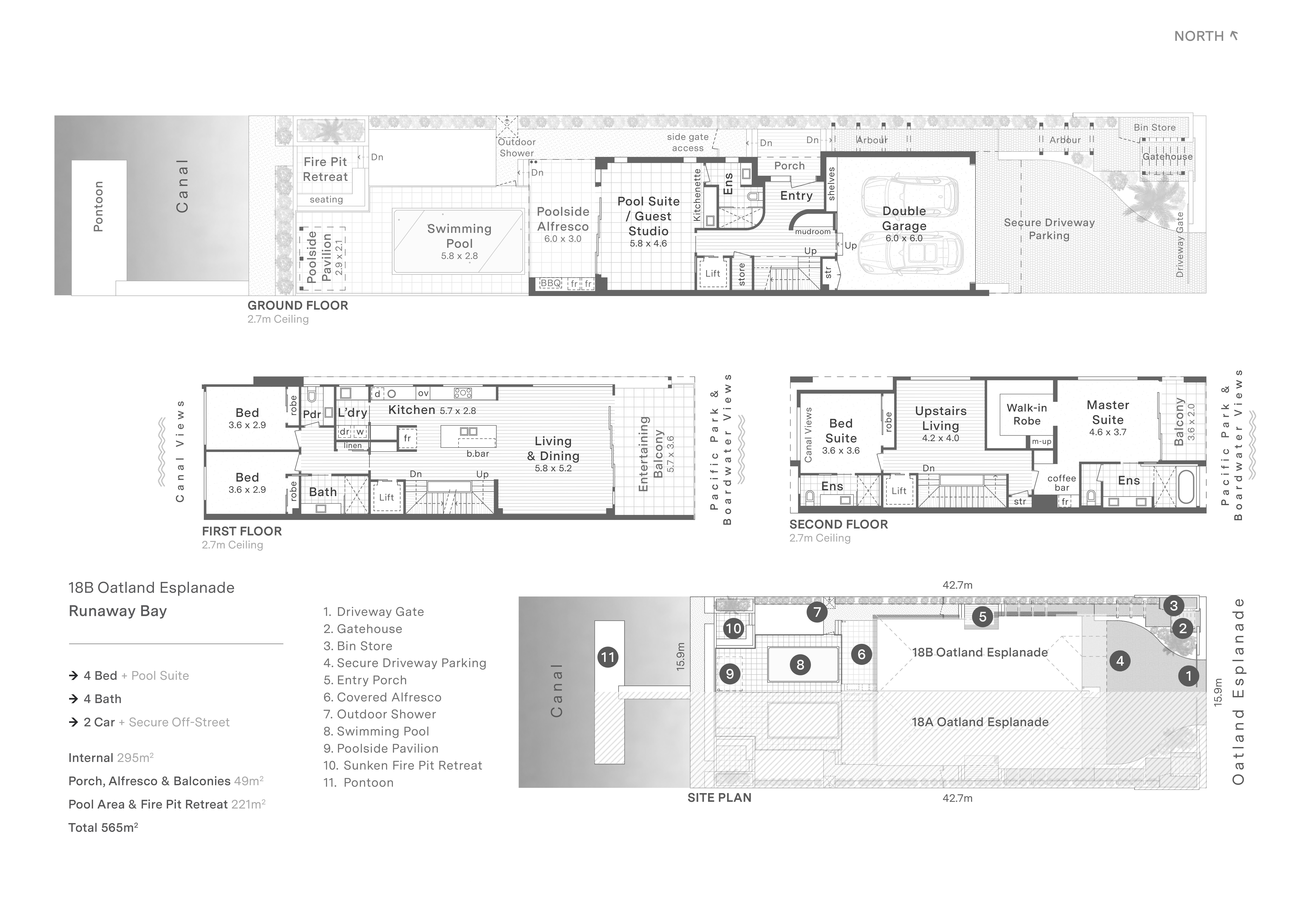
18 Oatland Esplanade
18 Oatland Esplanade
Location -
Gold Coast, QLD
Developer -
Hybrid Projects
Architect -
Vanguard Building Design
Branding -
Sales -
Project Services -
CGI, Animation, Floorplans, Photography
ready to get started?
Email our Director - Robert











